12. ባይቶ ኣዱላውያን


ሕንጻ ባይቶ ኣዶሊስ፡ ኣብ 15.26206 ላቲቱድ፡ 39.66007 ሎንጊቱድ፡ ዓቂንካ ሽኻል እንተደኣ ሸኺልኩም፡ ደቡባዊ-ምዕራብ ኩርናዑ ትረኽቡ (ኣብ ታሕቲ ዘሎ ካርታ ተመልከቱ)። ደቡባዊ-ምዕራብ ኩርናዕ ሕንጻ ንተመራመርቲ ስነ-ጥንቲ ኮነ ንሃንደስቲ ሕንጻ፡ መዓቀኒ ዚጥቀሙሉ ኣገዳሲ ነጥቢ ኢዮ። ደቡባዊ-ምዕራብ ኩርናዕ ሕንጻ ሒዝኩም መስቀል እንተደኣ ሰኢልኩም፡ ነቲ ከትዕቅንዎ ዝደለኹም ሕንጻ ብኣወንታዊ (positive) ቁጽሪ ንኽትዕቅኑ ስለዝሕግዘኩም::ከምኡውን ንዝኾነ ከረጋግጽ ዝደሊ ሰብ፡ ኣብዚ ግዜና ብቐሊሉ ዚርከብ መማእዘኒ (GPS) ሒዙ፡ ነዚ ኣብ ላዕሊ ዘሎ ዓቐን መኣዝን (coordinates) መሊኡ፡ ብቐሊሉ ነዚ ሕንጻ ባይቶ-ኣዶሊስ፡ ክረኽቦ ይኽእል።


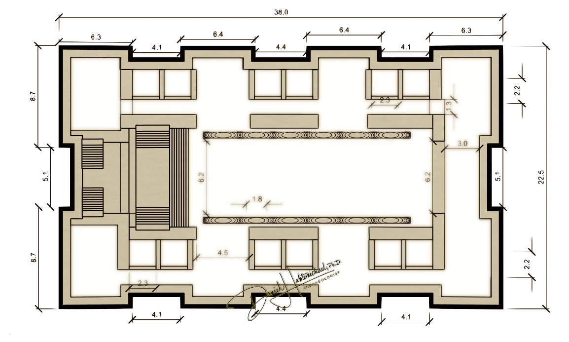
1. ንድፊ ሕንጻ ባይቶ ኣዶሊስ


ሕንጻ ባይቶ ኣዱላውያን በዓል ሰለስተ ደርቢ፡ 38 ሜትሮ ዝንውሓቱ፡ 22.5 ሜትሮ ዝግፍሑ ኮይኑ ((ኣብ ታሕቲ ዘሎ ሰእሊ ተመልከቱ)፡ ኣብቲ ዝተሰርሓሉ እዋን መስተንክራዊ ሕንጻ ምሕደራን፡ ወከልቲ 24 ነኣሽቱ ግዝኣታት ዘኣንገድ ኣዳራሽ ኔሩ።


2. ኣዳራሽ ባይቶ


ሕንጻ ባይቶ ኣዱላውያን፡ ኣብ ማእከል እቲ ኣዳራሽ፡ ሾብዓተ አዕኑድ ብየማንን ብጸጋምን ሰሪዑ፡ ኣብ ላዕለዋይ ጥርዙ ብፍርቂ ክቢ ምልኩዕ ዓንዲ፡ ካብ ሓደ ዓንዲ ናብቲ ካልእ ዓንዲ ይተኣሳሰር (ኣብ ታሕቲ ዘሎ ሰእሊ ተመልከቱ)። የማናይ ወገን መስርዕ አዕኑድ ካብቲ ጸጋማይ ወገን መስርዕ ብ6.2 ሜትሮ ይረሓሓቕ። እዚ በአዕኑድ ዘጌጸ ማእከል ኣዳራሽ ሕንጻ ባይቶ 26 ሜትሮ ንውሒ፡ 8.4 ሜትሮ ግፍሒ ኣለዎ። ብየማንን ብጸጋምን እዚ ማእከላይ ኣዳራሽ፡ ሸሽዱሽተ ንኣሽቱ ገዛውቲ ኣለውዎ (ኣብ ታሕቲ ዘሎ ሰእሊ ተመልከቱ)። ናብ ኣዳራሽ ባይቶ ኣዱላውያን ብሓሙሽተ መእተዊታት ይእቶ።ብወገን ደቡብ ሰለስተ 4.1 ሜትሮ ዝምግፍሖም መዓጹ እንክህልውዎ ብወገን ምብራቕ ግን ክልተ 2.2 ሜትሮ ዝግፍሖም መዓጹ ኣለውዎ። ኣብ 3.5 ሜትሮ ንላዕሊ፡ ቀዳማይ ደርቢ በዕኑድ ጽሕድን ኣውሊዕን ተረቢቡ ይዛዘም (ኣብ ታሕቲ ዘሎ ሰእሊ ተመልከቱ)።

3.ካልኣይን ሳልሳይን ደርቢ ባይቶ


ናብ ካልኣይ ደርቢ፡ ብወገን ምዕራብ ብዝርከብ መሳልል ይድየብ። ልክዕ ከም ቀዳማይ ደርቢ 12 ነኣሽቱ ገዛውቲ ዘለውዎ፡ ካልኣይ ደርቢ ልክዕ ቅዳሕ ቀዳማይ ደርቢ ኮይኑ ብወገን ምብራቕን ምዕራብን ግን ግፍሕ ዘበለ ገዛውቲ ኣለዎ። (ኣብ ታሕቲ ዘሎ ሰእሊ ተመልከቱ)።

ካልኣይ ደርቢ ከምኡውን ሳልሳል ደርቢ ነፍሲወከፉ ዕስራ መሳኹቲ ኣለውዎ። ኣሰራርሓ መሳኹቲ ባይቶ ኣዱሊስ ኣብ ካል ኣይ ደርቢ ኣብ እግሩ ዝገፍሐ ፊደል-በ እንክኽውን ኣብ ሳልሳይ ደርቢ ግን ንላዕሊ ገጹ ዝጠመተ ኮይኑ ገፊሕ ፊደል-ሀ ይመሳሰል (ኣብ ታሕቲ ዘሎ ሰእሊ ተመልከቱ):: ሰለስቲኡ ደርብታት ኣኣብ 3.5 ሜትሮ ምስ ተነድቀ በዕኑድ ተረቢቡ ይዛዘም (ኣብ ላዕሊ ዘሎ ሰእሊ ተመልከቱ)